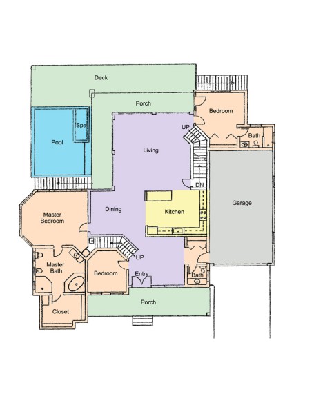
Main Level Floorplan

The main level features an inviting open layout surrounded by glass doors presenting expansive views of the sea, St Martin, St Barth and Anguilla to be seen day and night.

The gourmet kitchen is perfect for the chef at heart who can still join in the fun and games happening in the living room. Enjoy the activities on the deck and in the pool.

The warm breezes and starry skies is the ultimate relaxation before retiring to the private sanctuary of your room for a peaceful sleep

 

 

8582746d00fceb1092d2dbb53504cf8c1652594722566_thumb.jpg

ENTERTAINMENT DECK

Villa B on the Sea is a luxurious villa with all the indoor and outdoor amenities desired in a vacation in Anguilla for family and friends. The villa host will meet you at the port of entry and guide you back to the villa for a personal tour of the villa.

The upper-level bedrooms located in private wings for privacy have direct access to outdoor space for guests. Each bedroom comes with its own private bathroom.

 

 

cd65e0684a00870a87ff764d5540c1821652594756974_thumb.jpg